貸別荘詳細情報 那須町大字高久甲
コメント
「那須街道」と交差する「りんどうライン」の東側、りんどうラインの北側背後に位置する、別荘、ロッジなどが散見される地域です。平坦な地勢ながら樹木も残っており、また周辺にはトリックアート迷宮?館、カーミュージアムなどの観光施設やパスタ専門店、カフェなどの飲食店などもあり、それなりに観光地たる那須高原を体感できる地域でもあります。
本建物は通称「角ログ」と呼ばれるログハウス(2階は天井の傾斜そのままのロフト風−やや低め)で、ですので、異空間とはいきませんが、利用者は別荘という非日常を十分堪能できると思います。また建物背後には東屋風のBBQ施設がありますので、別荘ライフを大いに楽しめるのではないでしょうか。
敷地も広く、3〜4台(無理をすれば5台?)の駐車スペースがあり…会社の保養所としての利用がお勧めです。
標高もさほど高くなく、雪害の心配はありませんので、通年利用も可能です(前任者は、定住利用)。
基本情報
| ●位置・標高 |
道の駅「友愛の森」より、南東方へ直線で約1.5km.標高 445 m |
| ●所在 |
那須町大字高久甲 |
| ●土地の表示 |
敷地/498 u ( 150 坪) |
| ●建物の表示 |
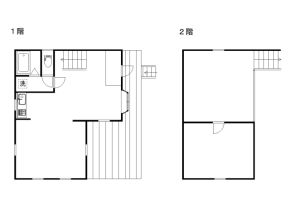
木造ルーフィング葺2階建・平成8年7月築
/貸家・賃貸面積/1階57.50u、2階45.00u 計102.50 u( 31 坪) |
| ●一時金 |
敷金、礼金各1ヶ月 (仲介手数料;別途必要) |
| ●共益金 |
な し |
| ●その他 |
駐車場3〜4台可 ペット相談 |
 |
 |
南東方より撮影 |
正面方より撮影 |
 |
 |
バーベキュー施設 |
間取図(クリックで拡大) |
詳細情報
電気/東京電力・ガス/プロパンガス・水道/上水道・排水/浄化槽・Net/Bフレッツ/可・権利/賃貸借・引渡/相談・取引態様/仲介
※上記物件説明と現状が異なる場合は、現状優先となります。
|