中古別荘詳細情報 栃木県那須町大字高久甲(管理地外・町水道)
コメント
道の駅「友愛の森」に近接する「広谷地」交差点と東方「池田」交差点を貫く県道(那須西郷線−通称那須グリーンライン)の南方、オルゴール美術館の更に南方に位置する別荘地です。
対象不動産は、日当たり良好の南斜面に建てられた角ログのログハウスです。
この建物の建築当時、ログハウスに精通する建築士や工務店が日本には少なく、よって、所有者が自ら専門書(洋書)を読み込み、日本の環境に適したログハウスを提供するアメリカ・シカゴのログハウス業者と交渉し、自身が設計して材料を輸入、那須の工務店を指揮・監督して完成させた建物で、3層75mmの角ログを組み上げた那須地区でも上品等のログハウスです。
「備品などにはあまりお金をかけなかったが、躯体は頑丈に設計したので、地震など被害も最少で利用には全く影響がない。」と話す通り、本当に状態は良好です。
自身は建築とは特に縁がなかったそうですが、この建物を見た知人などから設計・建築を依頼され、那須地区に20数棟のログハウスを同様の手法で建ててあげたそうです(ログには精通しています。)。
そのような方が所有している物件ですので、安心して取引できると思います。
サンルームを造ろうとデッキ部分を取り外したそうですが、売却を考え、そのままになっています。屋根の塗装も建築時のままですので、雨漏りなどはありませんが、塗装の必要はあるだろうとのことでした。 また玄関右側の部屋にはキッチン・浴室・トイレが備え付けられていますが、全く利用していないとのことで給湯器やキッチン設備などは使えない前提で考慮してほしいとのことです。
フォーム(間取りを変えるなど)も容易だそうですので、木の肌の住環境をお考えの方…是非。
定住に最適です(立地・管理地外・公営水道・標高等)。
定住目的に1千2,3百万円で中古別荘をとお考えの方、当物件を購入後リフォームすれば、予算内で「なんということでしょう。」となること請け合いです。思い切ってチャレンジしてみてください(何といっても立地は最高ですし…。那須で実績のあるログの匠を紹介します。)。
基本情報
| ●位置・標高 |
道の駅「友愛の森」の東方へ直線で1.2Km・標高/449m |
| ●所在 |
那須町大字高久甲 |
| ●土地の表示 |
地目/宅地 ・地積/379.34 u(約114.7坪) |
| ●建物の表示 |
木造スレート葺2階建
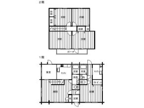
床面積/ 1階 77.00 u 2階 55.93 u ・計132.93 u(約40.2坪)
平成3年1月(1991年) |
| ●道路条件 |
南側,幅員5.5m町道・画地裾部で接面 |
| ●画地条件 |
地勢/南方へ傾斜・間口:奥行/約17.5m:約27.5m・形状/ほぼ整形 |
| ●行政的条件 |
建ぺい率60%:容積率200%・景観区域 |
 |
 |
南東方より撮影 |
南西方より撮影 |
 |
 |
北側背後より撮影 |
南東方面より撮影 |
 |
 |
間取図(クリックで拡大) |
見取り図 |
詳細情報
電気/東京電力・ガス/プロパンガス・水道/公営水道・排水/単独浄化槽・Net/Bフレッツ・駐車場/1〜2台可・温泉/なし・権利/所有権・瑕疵担保責任/免除・引渡/相談・取引態様/仲介
建築時諸費用・管理費等費用/無し
※上記物件説明と現状が異なる場合は、現状優先となります。
|