中古別荘詳細情報 栃木県那須町大字湯本
コメント
那須温泉郷で営業する老舗旅館「山楽」の北側背後、南方への傾斜地に造られた避暑型の別荘地内に所在しています。
那須温泉郷を中心に、那須高原にあっては各種観光施設、飲食店等が比較的集積した地域でもあります。
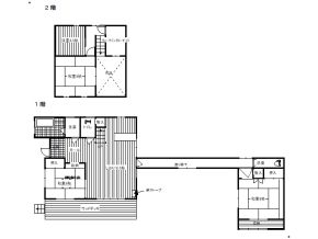
対象不動産は緩やかな南斜面で、画地中程が大きく窪んでいます。建物はこのような地勢に配慮し、画地西側奥に2階建ての主たる建物、東側にお客様用(所有者による)離れを建て、渡り廊下で綱くような造りとなっています。敷地は広いので、デッキ等からの景色は十分自然が感じられ…自然に触れ別荘を楽しむのに十分すぎる環境です(敷地には各所にイス、テーブルなど置かれています。)。
建物は、一階和室に(自在鉤を設け)囲炉裏があります。リビングには薪ストーブも置かれています(冬場は殆ど来ないので、インテリアのようなものだとのこと…。)。2階の各部屋はロフトのような造りで、壁側天井は屋根の傾斜なりに一部傾斜しています。
当然、建物には特に不具合などはありません。
以前は「那須」といえば、この周辺をさし、御用邸や企業の保養施設など数多く見受けられるなど避暑用別荘地の中心的な処でしたが、近年は別荘等への需要は通年利用、定住などへと変わり、冬季雪の残る当地周辺への需要は少なくなっているのが現状です。が、地球温暖化?により、猛暑、酷暑の続く近年の気候傾向から、夏場、30度を超える日のない(所有者談)避暑地に所在する別荘ですので、将来的には、再度、避暑用別荘地として見直されるのでは…。
那須の別荘地で言えば、「旧市街」のようなところで、企業、個人所有の別荘も長く利用されており、なかなか売り物件の少ない地域の別荘です(所有者は相続なども考え、売却を検討しているとのこと)ので、今後、過ごしやすい夏を過ごしたい方にはタイミング的に魅力的な別荘だと思います。
ご連絡をお待ちしております。
基本情報
| ●位置・標高 |
道の駅「友愛の森」より北方へ直線で5Km・標高/815m |
| ●所在 |
那須町大字湯本(管理地外) |
| ●土地の表示 |
地目/山林 ・地積/1,244u(376坪)・私道負担:79u(23.9坪) |
| ●建物の表示 |
木造亜鉛メッキ鋼板葺2階建
床面積/1階93.98u (28.4坪)、2階28.98u(8.7坪)、延べ面積122.96u(37坪)
平成16年(2004年)4月築 |
| ●道路条件 |
南側、幅員約3.8m未舗装道(42条1項3号道路-既存道路)・画地裾辺で接面 |
| ●画地条件 |
地勢/南方緩傾斜(中程凹状)・接面間口:奥行/21m:20・形状/ほぼ整形 |
| ●行政的条件 |
建ぺい率20%:容積率40%・自然公園法第二種地域、景観形成重点地区 |
 |
 |
エントランスより撮影(母屋) |
南西方より撮影 |
 |
 |
北東方より撮影(母屋) |
南東方より撮影(離れ-奥母屋) |
 |
 |
道路方より撮影(窪地) |
敷地(建物より撮影) |
 |
 |
間取図(クリックで拡大) |
見取り図 |
詳細情報
電気/東京電力・ガス/プロパンガス・水道/公営水道/浄化槽・Net/可・駐車場/2台可・温泉/可・権利/所有権・瑕疵担保責任/免除・引渡/相談・取引態様/仲介
建築時諸費用・管理費等費用/無し。
※上記物件説明と現状が異なる場合は、現状優先となります。
|